Live Modal | Modal 01
Modal is a modular construction company that designs, builds, and delivers prefab accessory dwelling units to those seeking a turn-key experience for their ADU needs. Modal’s ADUs are sustainable, adaptable, and modern. The uniquely-designed spaces serve to benefit your future — as an extra source of income or flexible space for any of life's needs. Modal’s products embody the organization’s biggest goal: to provide a solution to the nation's affordable housing crisis. The provision of standardized plans like these is one step — of many — towards achieving this goal.
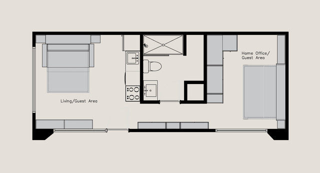
Furniture placements by Resource Furniture.
For further information about Modal:
Email: info@livemodal.com | Website: livemodal.com
For further information on this standard plan click here.

For the main living area, we recommend a queen wall bed with integrated sofa, which will allow this space to seamlessly transition from living room to guest bedroom in seconds.
The Oslo Sofa is available in multiple arm widths and features a hidden storage compartment under the sofa seat, making it an ideal choice for compact ADUs.