Welcome Projects | The Breadbox ADU
Based in Los Angeles, Welcome Projects is playfully revisiting the vernacular to tell stories through design one project at a time. Led by Laurel Consuelo Broughton, Welcome Projects’ studio services include architectural and industrial design, creative consulting, branding, and ideation.
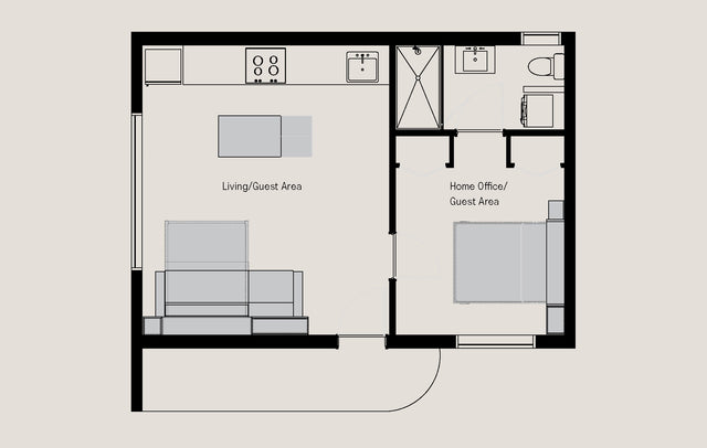
Welcome Projects has nicknamed this Standard Plan Accessory Dwelling Unit 'The Breadbox' for its curve-topped walls and slight resemblance to that vintage counter accessory.
Furniture placements by Resource Furniture.
For further information about Welcome Projects:
Email: thebreadbox@welcomeprojects.com | Website: welcomeprojects.com
For further information on this standard plan click here.

We designed this space with a queen wall bed with integrated sectional sofa, allowing this room to seamlessly transition from living are to guest bedroom in seconds.
The Oslo Sectional features a three-seat sectional sofa by day, as well as a hidden storage compartment under the seat — a perfect choice for compact ADUs, where extra storage space is scarce.
The LGM wall bed is truly your all-in-one space solution. By day, LGM functions as a fully equiped home office, featuring a full height bookshelf and optional 5' fold-down desk on it's front panel. With the pull of a hidden lever, it effortlessly rotates 180° to reveal a queen bed with slight-out nightstands—converting this space to a cozy guest bedroom in an instant, while all of your books and belongings stay neatly in place on their shelves.
The new LGM 2.0 features the option to mount a 55" TV on the front panel, as well as a fully detatchable desk that doubles as a freestanding table.
Use the form below to connect with a Resource Furniture showroom today!
{formbuilder:MTExNzMy}
